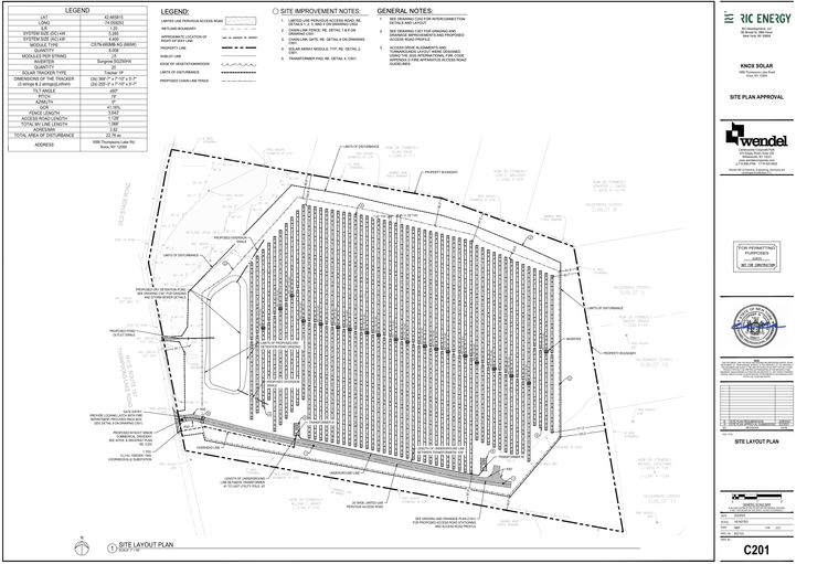
Images 1

— Sketch from RIC Energy

This page from RIC’s application to the Knox Planning Board shows the layout of its proposed 4.4. megawatt solar farm at 1688 Thompsons Lake Road.